CP生料均化庫

一、概述
CP生料均化庫是南通江森機械制造有限公司引進德國BMH公司一種新型生料均化庫,其特點是電耗低,均化效果好。CP生料均化庫的均化原理是庫頂生料通過8條斜槽均勻布料,不同時期的生料在庫內呈橫向分布,庫底充氣系統設計更符合生料充氣后的流動性,呈放射狀斜向分布,環形區一般分8個區,每隔5分鐘輪流充氣,充氣區生料因松動及氣流的引導卸入中心區,庫內不同層的生料豎向切割下料實現生料的均化,不同時間的生料進入中心區后再進行氣體強烈混合均化,從而達到理想的均化效果。
它的均化機理是生料粉由庫頂生料分配器通過8條卸料斜槽,在庫頂成徑向分布,不同時間的生料在不同的料層上具有徑向均化的效果,庫底充氣系統設計呈放射狀斜向分布,更符合生料粉的流動傾向。環形區一般分為8個充氣單元區,可每隔5-10分鐘循環一次,環形區的生料因松動及氣流的引導流向中心區,庫內的卸料過程是成柱狀流動切割水平面料層的生料粉,讓不同時間的生料粉進入中心區,由于中心區的充氣強度大,不同時間的生料粉進入中心區后得到充分的攪拌,從而達到理想的均化效果。功率消耗0.1-0.3kW/t,具有較高的均化比。
CP生料均化庫是我公司引進的德國BMH公司的一種新型生料均化庫,其特點電耗低、均化效果好。
二、CP型生料均化庫示意圖

地址:江蘇省南通市海安縣白甸鎮思富工業園 電話:0513-88441116 傳真:0515-88449996 郵箱:jsjx108@163.com
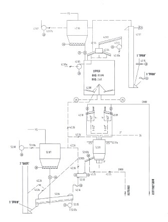
三、CP生料均化及生料入窯工藝流程圖
.jpg)
地址:江蘇省南通市海安縣白甸鎮思富工業園 電話:0513-88441116 傳真:0515-88449996 郵箱:jsjx108@163.com
四、技術參數表(18mCP)
序號
設備名稱
規格、型號
數量
備 注
1
庫頂生料多點卸料器
Φ1600、250t/h
1套
工藝定
2
庫底卸料閥系統
200t/h
2臺
工藝定
3
均化庫充氣管道及閘閥
1套
4
充氣系統控制閥
DN100、DN80
6只
8只
5
庫底開式充氣斜槽
220
6
計量倉
Φ4000×5800mm
1只
7
稱重倉卸料裝置
200t/h
2套
8
充氣攪拌PLC控制柜
1臺
|
序號 |
設備名稱 |
規格、型號 |
數量 |
備 注 |
|
1 |
庫頂生料多點卸料器 |
Φ1600、250t/h |
1套 |
工藝定 |
|
2 |
庫底卸料閥系統 |
200t/h |
2臺 |
工藝定 |
|
3 |
均化庫充氣管道及閘閥 |
|
1套 |
|
|
4 |
充氣系統控制閥 |
DN100、DN80 |
6只 8只 |
|
|
5 |
庫底開式充氣斜槽 |
|
220 |
|
|
6 |
計量倉 |
Φ4000×5800mm |
1只 |
|
|
7 |
稱重倉卸料裝置 |
200t/h |
2套 |
|
|
8 |
充氣攪拌PLC控制柜 |
|
1臺 |
|
地址:江蘇省南通市海安縣白甸鎮思富工業園 電話:0513-88441116 傳真:0515-88449996 郵箱:jsjx108@163.com


